Dnes je utorok 4. novembra 2025, meniny má Karol a zajtra Imrich  
	 
	
  
  
 
 
	
	 
  
	
			
	
	 Jeep Grand Cherokee 5,9 v8   
	
        
        
            | Autor | 
            Správa | 
         
        
			| 
				
				 enduro 
				OFFROAD Expert 
				
					 Registrovaný: Pon, 27.11.2006, 22:58 Príspevky: 597 Bydlisko: Banská Štiavnica
				 
				 
			 | 
			
				
				
					
						Ako kamarat sorry, mam ja aj ine starosti a hlavne zdravie mam len jedno      co som vedel som poradil, farby si z hlavy nepamatam, ale prepajal som to skor podla pismen na konektoroch, takze A a C zo stvorpinu spojit. Potom D stvorpin pripojit na A dvojpin, B stvorpin na B dvojpin. A ze ti tvoje dvojpin cidlo ukazuje nieco v kazdej zo styroch poloh este neznamena ze je 100% funkcne.  
					
						 _________________ Dodge Durango 3.6 FlexFuel Limited 2015 Ex: Jeep GrandCherokee Limited 2,5 TD 2" spacers, Rancho 5000 Ex: Jeep GrandCherokee Limited 5,9 LX V8 SelecTrac, Flowmaster, K&N Ex: Jeep GrandCherokee Overland 4.7 H.O. Rancho 5000 1,5" 
					
  
			 | 
		 
		
			| Uto, 02.01.2018, 7:58 | 
			
				
					 
					
					 
				  
			 | 
    	
		 
	
	
		  | 
	 
	
			| 
				
				 enduro 
				OFFROAD Expert 
				
					 Registrovaný: Pon, 27.11.2006, 22:58 Príspevky: 597 Bydlisko: Banská Štiavnica
				 
				 
			 | 
			
				
				
					
						Alebo inak - cidlo iba zopina dve polohy (PartTime, FullTime) voci kostre. Tak pripoj merak, pripadne ziarovku medzi +12V a cidlo a budes vidiet ci zopina ako ma. 2H - ziaden signal na ziadnom pine 4PartTime - signal na pine A 4FullTime - signal na pine B N - ziaden signal na ziadnom pine 4LO - signal na pine A http://www.jeep.avtograd.ru/xfer/xfer_switch.htm 
					
						 _________________ Dodge Durango 3.6 FlexFuel Limited 2015 Ex: Jeep GrandCherokee Limited 2,5 TD 2" spacers, Rancho 5000 Ex: Jeep GrandCherokee Limited 5,9 LX V8 SelecTrac, Flowmaster, K&N Ex: Jeep GrandCherokee Overland 4.7 H.O. Rancho 5000 1,5" 
					
  
			 | 
		 
		
			| Uto, 02.01.2018, 8:30 | 
			
				
					 
					
					 
				  
			 | 
    	
		 
	
	
		  | 
	 
	
			| 
				
				 indian 
				OFFROAD Expert 
				
					 Registrovaný: Str, 25.12.2013, 16:15 Príspevky: 556 Bydlisko: Bratislava
				 
				 
			 | 
			
				
				
					
						 enduro, si si isty, ze 2pinove cidlo ukazuje aj fulltime aj partime? pretoze jeden z tych dvoch pinov je kostra a druhy je signal (pozeral som aj schémy).. tak sa cudujem, akym zázrakom vie na kazdom pine zopnut zvlast signal. keby mi to niekto vysvetlil, by som sa potesil 
					
						 _________________ Jeep Cherokee XJ 5.3 
					
  
			 | 
		 
		
			| Uto, 02.01.2018, 8:50 | 
			
				
					 
					
					 
				  
			 | 
    	
		 
	
	
		  | 
	 
	
			| 
				
				 enduro 
				OFFROAD Expert 
				
					 Registrovaný: Pon, 27.11.2006, 22:58 Príspevky: 597 Bydlisko: Banská Štiavnica
				 
				 
			 | 
			
				
				
					
						 Indian, no isty tym nie som, to priznavam. Ak mas schemu dvojpinu tak ju sem hod. Ak je signal len na jednom pine, tak potom cim rozlisuje rezimy? Urovnou signalu cez rezistor? To co som pisal mi logicky vychadzalo zo schemy cinnosti stvorpinu (ten link z ruskeho fora) + navodu od Harleya. 
					
						 _________________ Dodge Durango 3.6 FlexFuel Limited 2015 Ex: Jeep GrandCherokee Limited 2,5 TD 2" spacers, Rancho 5000 Ex: Jeep GrandCherokee Limited 5,9 LX V8 SelecTrac, Flowmaster, K&N Ex: Jeep GrandCherokee Overland 4.7 H.O. Rancho 5000 1,5" 
					
  
			 | 
		 
		
			| Uto, 02.01.2018, 11:25 | 
			
				
					 
					
					 
				  
			 | 
    	
		 
	
	
		  | 
	 
	
			| 
				
				 Medvedev 
				OFFROAD Expert 
				
					 Registrovaný: Štv, 24.07.2014, 14:21 Príspevky: 994 Bydlisko: Bratislava
				 
				 
			 | 
			
				
				
					
						
					
						  _________________ Jeep Grand Cherokee 5,9 v8, gear ratio 4.56 , Np 242 1995, Magnaflow metallic cat, Flowmaster 50, ARB locker,  Prins Lpg, HUG 5409 FI AIRGAP kit, HUG 5504 BIG GULP THROTTLE BODY,  Suzuki GSX S 1000 
					
  
			 | 
		 
		
			| Uto, 02.01.2018, 11:51 | 
			
				
					 
					
					 
				  
			 | 
    	
		 
	
	
		  | 
	 
	
			| 
				
				 indian 
				OFFROAD Expert 
				
					 Registrovaný: Str, 25.12.2013, 16:15 Príspevky: 556 Bydlisko: Bratislava
				 
				 
			 | 
			
				
				
					
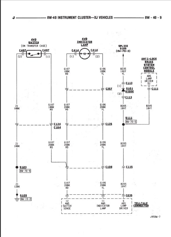
						medvedev dal 4 pinovy a tu je stare XJ (95) 2 pinovy: Príloha: 
			 
			4wd.jpg [ 46.38 KiB | Zobrazené 7912 krát ]
		
		
	  
					
						 _________________ Jeep Cherokee XJ 5.3 
					
  
			 | 
		 
		
			| Uto, 02.01.2018, 12:08 | 
			
				
					 
					
					 
				  
			 | 
    	
		 
	
	
		  | 
	 
	
			| 
				
				 palo-cherokee 
				koumák 
				
					 Registrovaný: Pia, 06.10.2006, 9:35 Príspevky: 4319 Bydlisko: ZA
				 
				 
			 | 
			
				
				
					
						pletiete hrušky s jablkami to čo dal indián je spínač pre 231 242 je aj u XJ de facto 3 pin - 2 piny na čidle plus kostra (obal čidla) a podľa toho či je na kostre žiadny, jeden, druhý alebo obidva to vie riešiť viacero polôh    
					
						
					
  
			 | 
		 
		
			| Uto, 02.01.2018, 13:24 | 
			
				
					 
					
					 
				    
			 | 
    	
		 
	
	
		  | 
	 
	
			| 
				
				 indian 
				OFFROAD Expert 
				
					 Registrovaný: Str, 25.12.2013, 16:15 Príspevky: 556 Bydlisko: Bratislava
				 
				 
			 | 
			
				
				
					
						palo-cherokee píše: pletiete hrušky s jablkami to čo dal indián je spínač pre 231 242 je aj u XJ de facto 3 pin - 2 piny na čidle plus kostra (obal čidla) a podľa toho či je na kostre žiadny, jeden, druhý alebo obidva to vie riešiť viacero polôh   toto som tusil, ze by mohlo byt riesenie    sranda, ze v tej starej scheme som to 242 zapojenie nenasiel. len 231.  
					
						 _________________ Jeep Cherokee XJ 5.3 
					
  
			 | 
		 
		
			| Uto, 02.01.2018, 13:34 | 
			
				
					 
					
					 
				  
			 | 
    	
		 
	
	
		  | 
	 
	
			| 
				
				 enduro 
				OFFROAD Expert 
				
					 Registrovaný: Pon, 27.11.2006, 22:58 Príspevky: 597 Bydlisko: Banská Štiavnica
				 
				 
			 | 
			
				
				
					
						Tak potom by to malo fungovat ako som pisal (za predpokladu ze Harley sa nemylil    ) Je to len prachsproste prepinanie jedneho a druheho pinu voci kostre. Len kostra asi nebude obal cidla (ten je plastovy), ale gulicka na konci cidla v kontakte s kulisou volica rezimov. Stale je to sice take tapanie v hmle, ale jedna vec je ista a to, ze ked sa ta moja pridavka instalovala prvykrat, robil to Andrej, kable boli bez konektora a zasilikonovane v cidle a vsetky rezimy to ukazovalo bezchybne. Tak Andrej, priznaj sa bez mucenia, podla akej schemy si to zapajal?     Treba ale povedat, ze ten pripad nebol vymena 249 za 242, ale vymena 231 za 242.  
					
						 _________________ Dodge Durango 3.6 FlexFuel Limited 2015 Ex: Jeep GrandCherokee Limited 2,5 TD 2" spacers, Rancho 5000 Ex: Jeep GrandCherokee Limited 5,9 LX V8 SelecTrac, Flowmaster, K&N Ex: Jeep GrandCherokee Overland 4.7 H.O. Rancho 5000 1,5" 
					
  
			 | 
		 
		
			| Uto, 02.01.2018, 13:48 | 
			
				
					 
					
					 
				  
			 | 
    	
		 
	
	
		  | 
	 
	
			| 
				
				 Medvedev 
				OFFROAD Expert 
				
					 Registrovaný: Štv, 24.07.2014, 14:21 Príspevky: 994 Bydlisko: Bratislava
				 
				 
			 | 
			
				
				
					
						 Tak ako to zapojiť aby to správne ukazovalo? 
					
						 _________________ Jeep Grand Cherokee 5,9 v8, gear ratio 4.56 , Np 242 1995, Magnaflow metallic cat, Flowmaster 50, ARB locker,  Prins Lpg, HUG 5409 FI AIRGAP kit, HUG 5504 BIG GULP THROTTLE BODY,  Suzuki GSX S 1000 
					
  
			 | 
		 
		
			| Uto, 02.01.2018, 13:58 | 
			
				
					 
					
					 
				  
			 | 
    	
		 
	
	
		  | 
	 
	
			| 
				
				 enduro 
				OFFROAD Expert 
				
					 Registrovaný: Pon, 27.11.2006, 22:58 Príspevky: 597 Bydlisko: Banská Štiavnica
				 
				 
			 | 
			
				
				
					
						Tak som hladal a nasiel.. http://www.jeepforum.cz/showthread.php?tid=6409Mas to aj s fotkami.. dolezity poznatok, na mieste ti to nebude ukazovat spravne, malo by byt nastartovane a malo by to mat otacky... precitaj to cele, je to podrobne rozpisane..  Ked ani potom nebudes mat uspech, tak bud zhanaj ine cidlo rezimov, alebo mas problem v povodnych kabloch na aute..  
					
						 _________________ Dodge Durango 3.6 FlexFuel Limited 2015 Ex: Jeep GrandCherokee Limited 2,5 TD 2" spacers, Rancho 5000 Ex: Jeep GrandCherokee Limited 5,9 LX V8 SelecTrac, Flowmaster, K&N Ex: Jeep GrandCherokee Overland 4.7 H.O. Rancho 5000 1,5" 
					
  
			 | 
		 
		
			| Uto, 02.01.2018, 15:01 | 
			
				
					 
					
					 
				  
			 | 
    	
		 
	
	
		  | 
	 
	
			| 
				
				 Andrej 
				OFFROAD Expert 
				
					 Registrovaný: Štv, 05.10.2006, 8:47 Príspevky: 4603 Bydlisko: Hlavná dedina
				 
				 
			 | 
			
				
				
					
						Hat Enduro kto by si to pamatal, že áno. to sú už roky a pamäť neslúži jak kedysi......    Zapájal podľa návodu Harleya, akurát poučen z predchodzího nezdaru, na farbu káblov som sa vy....l, nakoľko čo auto to malo iné farebné kábliky, takže len podľa písmen na čidlách. Ono občas sa stane že časom aj tak pôvodné čidlo trafí šľak a ukazuje to ako sa mu chce. A.  
					
						_________________WJ 2004 4,0l Laredo, 242 štandartne vo výbave - cestná leštenka 2" lift, Bilsteiny Toyota Auris Tourist Sports 1,6Valvematic, multidrive S EX Honda Civic 1,5 VVTI EX JGCH 4l - trochu off EX JGCH 5,2l - cestná leštenka email:  andrej.durda@gmail.com 
					
  
			 | 
		 
		
			| Uto, 02.01.2018, 15:55 | 
			
				
					 
					
					 
				  
			 | 
    	
		 
	
	
		  | 
	 
	
			| 
				
				 Andrej 
				OFFROAD Expert 
				
					 Registrovaný: Štv, 05.10.2006, 8:47 Príspevky: 4603 Bydlisko: Hlavná dedina
				 
				 
			 | 
			
				
				
					
						Hat Enduro kto by si to pamatal, že áno. to sú už roky a pamäť neslúži jak kedysi......    Zapájal podľa návodu Harleya, akurát poučen z predchodzího nezdaru, na farbu káblov som sa vy....l, nakoľko čo auto to malo iné farebné kábliky, takže len podľa písmen na čidlách. Ono občas sa stane že časom aj tak pôvodné čidlo trafí šľak a ukazuje to ako sa mu chce. A.  
					
						_________________WJ 2004 4,0l Laredo, 242 štandartne vo výbave - cestná leštenka 2" lift, Bilsteiny Toyota Auris Tourist Sports 1,6Valvematic, multidrive S EX Honda Civic 1,5 VVTI EX JGCH 4l - trochu off EX JGCH 5,2l - cestná leštenka email:  andrej.durda@gmail.com 
					
  
			 | 
		 
		
			| Uto, 02.01.2018, 15:55 | 
			
				
					 
					
					 
				  
			 | 
    	
		 
	
	
		  | 
	 
	
			| 
				
				 enduro 
				OFFROAD Expert 
				
					 Registrovaný: Pon, 27.11.2006, 22:58 Príspevky: 597 Bydlisko: Banská Štiavnica
				 
				 
			 | 
			
				
				
					
						 Andrej, dakujem, tym si len potvrdil co som uz napisal vyssie. Zapajat podla pismen, nie podla farieb a cidlo moze byt chybne.
  Apropo: vsetko dobre v roku 2018 Ti prajem!!! 
					
						 _________________ Dodge Durango 3.6 FlexFuel Limited 2015 Ex: Jeep GrandCherokee Limited 2,5 TD 2" spacers, Rancho 5000 Ex: Jeep GrandCherokee Limited 5,9 LX V8 SelecTrac, Flowmaster, K&N Ex: Jeep GrandCherokee Overland 4.7 H.O. Rancho 5000 1,5" 
					
  
			 | 
		 
		
			| Uto, 02.01.2018, 16:18 | 
			
				
					 
					
					 
				  
			 | 
    	
		 
	
	
		  | 
	 
	
			| 
				
				 Medvedev 
				OFFROAD Expert 
				
					 Registrovaný: Štv, 24.07.2014, 14:21 Príspevky: 994 Bydlisko: Bratislava
				 
				 
			 | 
			
				
				
					
						
					
						  _________________ Jeep Grand Cherokee 5,9 v8, gear ratio 4.56 , Np 242 1995, Magnaflow metallic cat, Flowmaster 50, ARB locker,  Prins Lpg, HUG 5409 FI AIRGAP kit, HUG 5504 BIG GULP THROTTLE BODY,  Suzuki GSX S 1000 
					
  
			 | 
		 
		
			| Uto, 02.01.2018, 23:08 | 
			
				
					 
					
					 
				  
			 | 
    	
		 
	
	
		  | 
	 
	
	
		 | 
	 
	
	 
	
	
 
	 
	
	
		Kto je on-line | 
	 
	
		Užívatelia prehliadajúci toto fórum: Žiadny registrovaný užívateľ nie je prítomný  | 
	 
	 
 
	 | 
	Nemôžete zakladať nové témy v tomto fóre Nemôžete odpovedať na témy v tomto fóre Nemôžete upravovať svoje príspevky v tomto fóre Nemôžete mazať svoje príspevky v tomto fóre Nemôžete zasielať súbory v tomto fóre
  | 
 
 
 
	 |